
جرثقیل آسانسور سنگین، جرثقیل باری دو لبه 30 تن
جرثقیل زیر بشکهای دو طرفه با قلاب ها در خارج از انبار یا راه آهن به سمت چپ کار می کند تا عملیات برداشت و تخلیه را انجام دهد. این نوع جرثقیل از پل، حمایت از پاها، ارابه سفر جرثقیل، واگن برقی با آسانسور قوی، تجهیزات الکتریکی و سیستم کنترل تشکیل شده است. به عنوان طراحی وظیفه سنگین خود، می توان آن را به طور گسترده ای در انواع زمینه های صنعتی استفاده می شود.
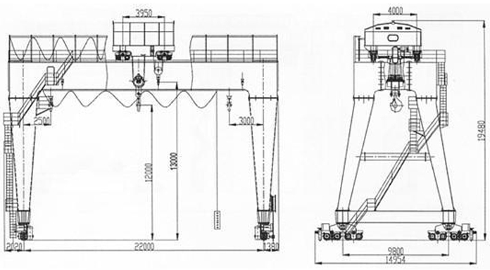
جرثقیل آسانسور، جرثقیل زیر بشکهای دو طرفه 30 تن
جرثقیل زیر بشکهای دو طرفه با قلاب ها در خارج از انبار یا راه آهن به سمت چپ کار می کند تا عملیات برداشت و تخلیه را انجام دهد. این نوع جرثقیل از پل، حمایت از پاها، ارابه سفر جرثقیل، واگن برقی با آسانسور قوی، تجهیزات الکتریکی و سیستم کنترل تشکیل شده است. به عنوان طراحی وظیفه سنگین خود، می توان آن را به طور گسترده ای در انواع زمینه های صنعتی استفاده می شود.